Architectural Drawings & Plans
Portfolio
If you've been thinking about making changes to your property, or perhaps you're considering building your very own dream home, we can help!
Take a look through our technical portfolio of completed Extensions, Loft Conversions, Family Room Extensions, Barn Conversions and New Builds.
Portfolio
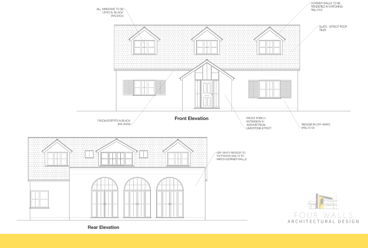
Residential Development in Aylesbury
A 6-unit development consisting of 3-bedroom self-contained residential dwellings. This project was designed for a change-of-use application on Grade 3 farmland. The scope consisted of a demolition of existing barns, levelling groundworks, construction of new access and entrance ways, and erection of terraced homes.
Project Type
Change of Use / New-Build
Building Type
Terraced
Bedrooms
3 per plot
Bathrooms
1-2 per plot
Total Sq. Meterage
512m2
Portfolio
Self Build Home in Bedford
A 4-bedroom detached self build project placed in the heart of Bedfordshire. This project was a bespoke design, constructed on land to the rear of an existing dwelling. A new home, brand new entrance, groundworks, boundary treatment and landscaping all formed the scope of this project.
Project Type
New-Build
Building Type
Detached
Bedrooms
4
Bathrooms
3.5
Total Sq. Meterage
302m2
Portfolio
Single-Storey Extension in Bedfordshire
Our client purchased a bungalow with an incomplete loft conversion. The entire home needed a major layout revision, demolition of an old garage-turned-bedroom, and completion of the first floor. End result: A large 1.5 storey home with a modern French farmhouse feel.
Project Type
Loft Conversion / Extension
Building Type
Detached Bungalow
Bedrooms
4
Bathrooms
3.5
Total Sq. Meterage
224m2
Portfolio
Two-Storey Extension in Maulden
This 1920’s art deco infused detached home needed to fit the modern family living. The project criteria detailed a large open space for entertaining and family living. A kitchen with plenty of natural light, and connection to the reception rooms. The first floor received a re-structure with a new extension to provide the master bedroom with a view over Bedfordshire’s countryside.
Project Type
Extension
Building Type
Detached
Bedrooms
4
Bathrooms
2.5
Total Sq. Meterage
268m2
Portfolio
Double Extension in Harpole, Northamptonshire
These two auction homes were purchased together. Left in a derelict state offering a very small living area, we re-designed the layouts to accommodate modern needs. A simple extension to the rear provided plenty of space for a medium-sized family, making it more appealing on the market.
Project Type
Extension
Building Type
Semi-Detached
Bedrooms
3 per plot
Bathrooms
1.5 per plot
Total Sq.Meterage
102m2 per plot
Portfolio
Extension and Loft Conversion in Marston Moretaine
A semi-detached two bedroom property, turned into a 3 double bedroom + study room home. Our client wanted a large master bedroom with views over the countryside in their major developer home. With the right ridge height, we were able to minimise cost and insulate the loft space, without compromising the roofline. 3 large roof lights provide plenty of natural light and offer the views. A small rear extension provided enough space on the ground floor to accommodate a study, and re-shuffle the layout, creating an airy open space to the rear.
Project Type
Extension / Loft Conversion
Building Type
Semi-Detached
Bedrooms
3
Bathrooms
2
Total Sq. Meterage
123m2
